Skip to main content
Built By

Tim O'Brien Homes, Inc.

Arbordale

Project Address

New Berlin, WI

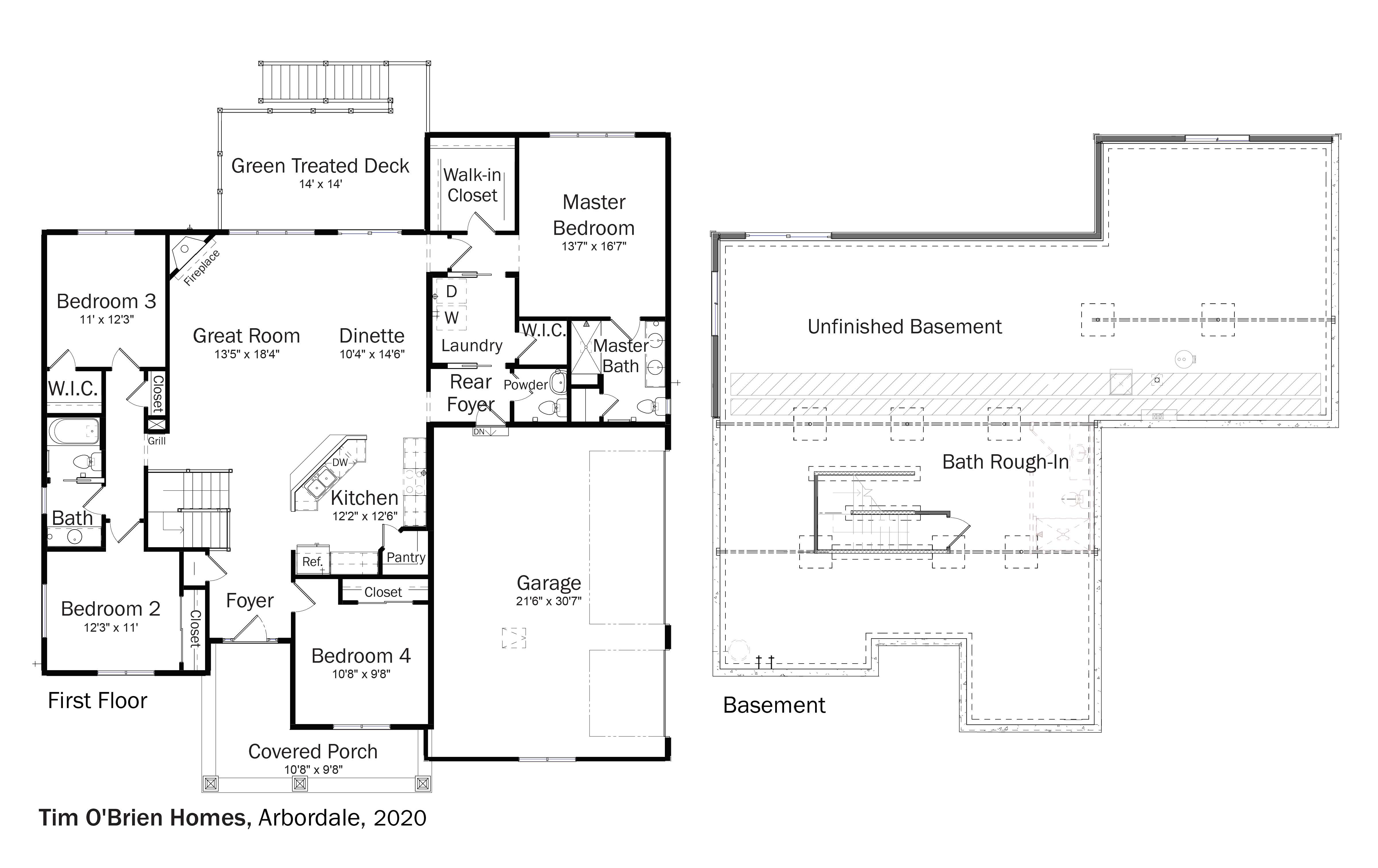
Conditioned Square Footage
2,116 sqft
Number of Bedrooms
4 Beds
Number of Bathrooms
2.5 Baths
Number of Floors Above Grade
1 Floor Above Grade
Home Type
Custom
Climate Zone Temperature
Cold
Climate Zone Humidity
Humid

With PV

HERS Index with PV
24HERS (PV)
Average Monthly Energy Bill PV
$60Average Monthly Energy Bill (PV)
Annual Energy Cost Savings with PV
$2,300Annual Energy Cost Savings (PV)
30 Year Savings with PV
$107,40030 Year Savings (PV)

EFFICIENT

HIA Year
HIA Status
Winner
HIA Category
Housing Innovation Award

Learn More

Key Features

Key Features
Energy / Heat recovery ventilator High-performance wall with continuous insulation Photovoltaics ACH 50 < 2.5 or CFM50/SF of enclosure ≤ 0.25

See the Poster

Testimonials

Video Testimonial
Home owner (or occupant) Testimony
The basement is where I can really feel [the comfort]. If you go downstairs it doesn't feel like a basement. Not damp and dingy like our old house.
Testimony Citation
Homeowner

Additional Media

Finished Elevations

Finished Interiors

Under Construction

Other Images

Floor Plan