Skip to main content
Built By

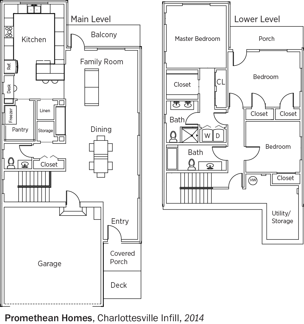
Promethean Homes, LLC

Charlottesville Infill

Project Address

Charlottesville, VA

Conditioned Square Footage
2,572 sqft
Number of Bedrooms
3 Beds
Number of Bathrooms
2.5 Baths
Number of Floors Above Grade
2 Floors Above Grade
Home Type
Custom
Climate Zone Temperature
Mixed
Climate Zone Humidity
Humid

With PV

HERS Index with PV
33HERS (PV)
Average Monthly Energy Bill PV
$70Average Monthly Energy Bill (PV)
Annual Energy Cost Savings with PV
$1,600Annual Energy Cost Savings (PV)
30 Year Savings with PV
$68,00030 Year Savings (PV)

EFFICIENT

HIA Year
HIA Status
Winner
HIA Category
Housing Innovation Award

Learn More

Key Features

Key Features
All-electric home Energy / Heat recovery ventilator Heat pump water heater High-efficiency variable-speed heat pump High-performance wall with continuous insulation Triple-pane windows ACH 50 < 2.5 or CFM50/SF of enclosure ≤ 0.25 Central Manifold Plumbing Design

Read the Case Study

Testimonials

Home owner (or occupant) Testimony
We're appreciating the comfortable, steady temperatures in the house, day and night. No drafts, no sudden changes. The prompt hot water delivery is quite a treat. We rarely hear outside noises. Our air exchanger appears to trap any fine dust and we don't have to breathe it – so we've been quite healthy since we moved in at the beginning of last July. Our electric bills have been remarkably low – and that's been a welcome change.
Testimony Citation
Homeowners Bob and Jean

Additional Media

Finished Elevations

Finished Interiors

Under Construction

Other Images

Floor Plan