Skip to main content
Built By

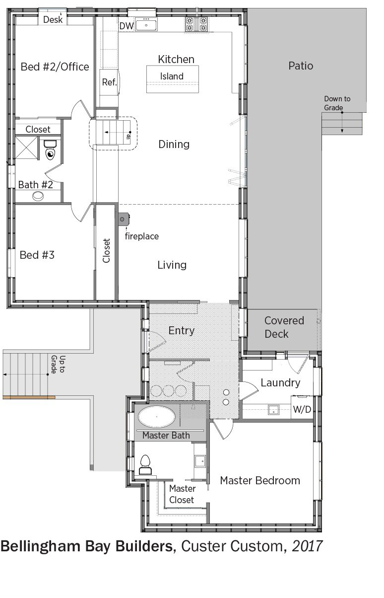
Bellingham Bay Builders

Custer Custom

Project Address

Custer, WA

Conditioned Square Footage
1,835 sqft
Number of Bedrooms
3 Beds
Number of Bathrooms
2.0 Baths
Number of Floors Above Grade
1 Floor Above Grade
Home Type
Custom
Climate Zone Temperature
Mixed
Climate Zone Humidity
Marine

With PV

HERS Index with PV
21HERS (PV)
Average Monthly Energy Bill PV
$30Average Monthly Energy Bill (PV)
Annual Energy Cost Savings with PV
$1,200Annual Energy Cost Savings (PV)
30 Year Savings with PV
$50,00030 Year Savings (PV)

EFFICIENT

HIA Year
HIA Status
Honorable Mention

Learn More

Key Features

Key Features
All-electric home Compact (core) plumbing design Energy / Heat recovery ventilator Heat pump water heater Photovoltaics Triple-pane windows Unvented insulated attic ACH 50 < 2.5 or CFM50/SF of enclosure ≤ 0.25 Double Walls

Testimonials

Home owner (or occupant) Testimony
We have lived in the home for two years now and couldn't be happier with the quality of construction, the ease of living, cleaning, and maintaining the home. Most of all, we enjoy the comfortable conditions and clean, healthy air year-round. For the first year, every room in the home was monitored, the temperature and humidity never varied by more than a few degrees or percent throughout the house ... even when [we were] on vacation and all systems were shut down.
Testimony Citation
Homeowner

Additional Media

Finished Elevations

Finished Interiors

Other Images

Floor Plan