Skip to main content
Built By

BrightLeaf Homes LLC

Eco 3 Greenfill

Project Address

LaGrange, IL

Conditioned Square Footage
4,608 sqft
Number of Bedrooms
5 Beds
Number of Bathrooms
3.5 Baths
Number of Floors Above Grade
2 Floors Above Grade
Home Type
Custom
Climate Zone Temperature
Cold
Climate Zone Humidity
Humid

With PV

HERS Index with PV
26HERS (PV)
Average Monthly Energy Bill PV
$110Average Monthly Energy Bill (PV)
Annual Energy Cost Savings with PV
$2,900Annual Energy Cost Savings (PV)
30 Year Savings with PV
$143,00030 Year Savings (PV)

EFFICIENT

HIA Year
HIA Status
Winner
HIA Category
Housing Innovation Award

Learn More

Key Features

Key Features
Electric Vehicle Charger Installed or Wired for Charger Photovoltaics Raised-heel trusses Triple-pane windows ACH 50 < 2.5 or CFM50/SF of enclosure ≤ 0.25 Staggered Stud Walls

Additional Details

Additional Details
Basement

Read the Case Study

See the Poster

Testimonials

Home owner (or occupant) Testimony
We thoroughly enjoy living in our BrightLeaf home. The energy efficiency, open floor plan, passive solar heat, and light are all great features. Energy bills are less than half of our previous home with 20% more square footage. Friends and neighbors always comment on the beauty of the space.
Testimony Citation
Homeowner

Additional Media

Finished Elevations

Finished Interiors

Other Images

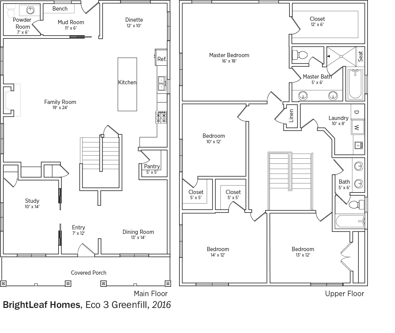
Floor Plan