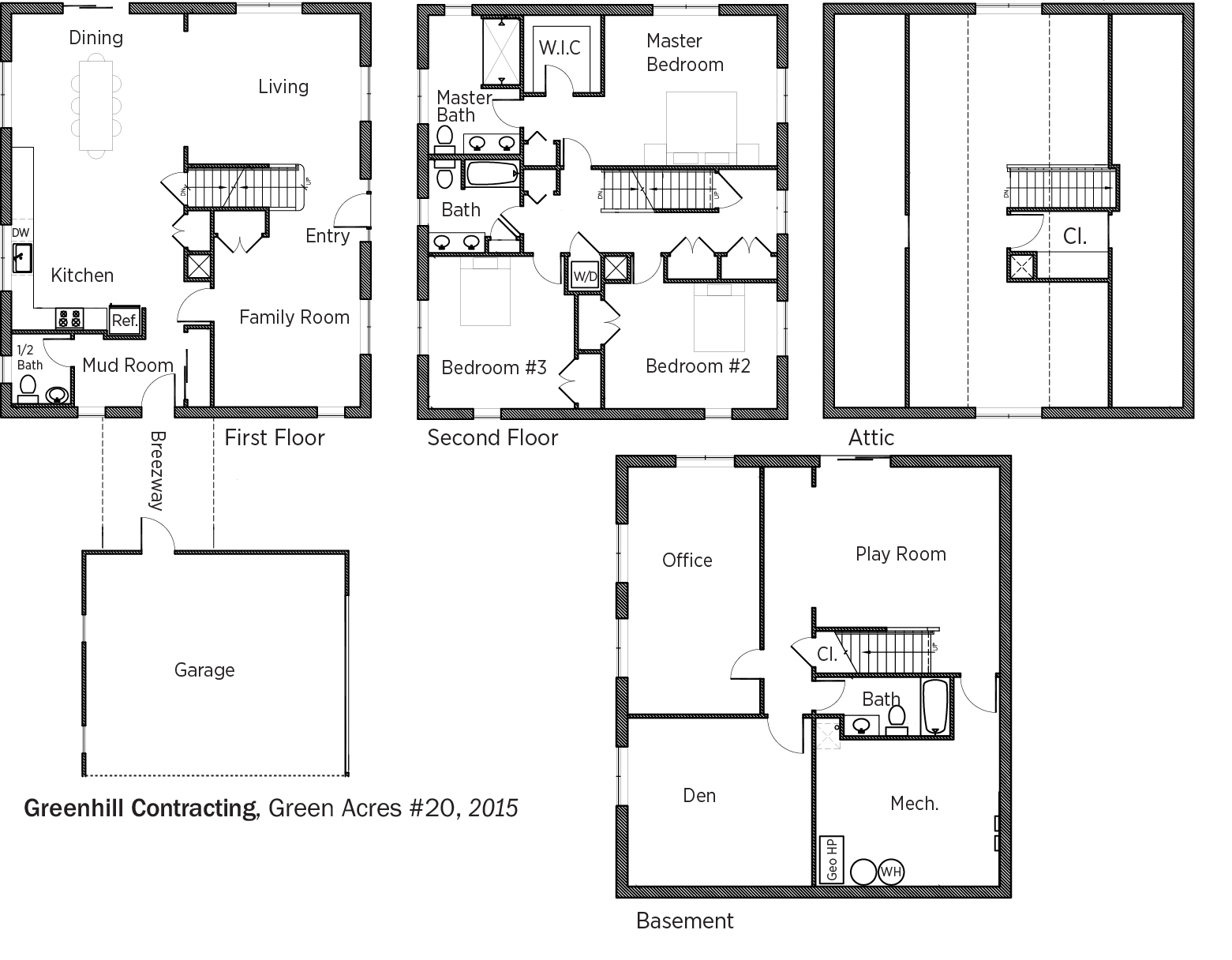
Conditioned Square Footage
4,454 sqft
Number of Bedrooms
4 Beds
Number of Bathrooms
3.5 Baths
Number of Floors Above Grade
2 Floors Above Grade
Home Type
Custom
Climate Zone Temperature
Cold
Climate Zone Humidity
Humid
With PV
HERS Index with PV
-3HERS (PV)
Average Monthly Energy Bill PV
$10Average Monthly Energy Bill (PV)
Annual Energy Cost Savings with PV
$4,000Annual Energy Cost Savings (PV)
30 Year Savings with PV
$170,00030 Year Savings (PV)
EFFICIENT
HIA Year
HIA Status
Winner
HIA Category
Housing Innovation Award
Learn More
Key Features
Key Features
All-electric home Cold-climate heat pump Energy / Heat recovery ventilator Electric Vehicle Charger Installed or Wired for Charger Ground source heat pump High-efficiency variable-speed heat pump Insulated concrete form (ICF) walls and/or foundation Photovoltaics Triple-pane windows Unvented insulated attic ACH 50 < 2.5 or CFM50/SF of enclosure ≤ 0.25 Central Manifold Plumbing Design
Additional Details
Additional Details
Basement
Read the Case Study
Testimonials
Home owner (or occupant) TestimonyKnowing very little [about these types of homes], I simply wanted a good value and all the things one wants from a new home. Those basic requirements such as comfort, quietness, and quality of construction have certainly been met for me. However, above and beyond that, we are very excited about the economic projections of owning this home…. We will be paying no energy bills on the balance of the year. Not having to worry about increasing energy costs has been comforting... It is not often that the responsible thing to do for the greater good also turns out to offer immediate personal economic benefits.Testimony CitationHomeowner