Skip to main content
Built By

CVH Inc. DBA Clifton View Homes

Greenbank Red House (Leganza)

Project Address

Coupeville, WA

Conditioned Square Footage
1,955 sqft
Number of Bedrooms
2 Beds
Number of Bathrooms
2.0 Baths
Number of Floors Above Grade
2 Floors Above Grade
Home Type
Custom
Climate Zone Temperature
Mixed
Climate Zone Humidity
Marine

With PV

HERS Index with PV
-5HERS (PV)
Average Monthly Energy Bill PV
$-40Average Monthly Energy Bill (PV)
Annual Energy Cost Savings with PV
$2,200Annual Energy Cost Savings (PV)
30 Year Savings with PV
$92,00030 Year Savings (PV)

EFFICIENT

HIA Year
HIA Status
Honorable Mention

Learn More

Key Features

Key Features
All-electric home Electric Vehicle Charger Installed or Wired for Charger Ground source heat pump Heat pump water heater High-efficiency variable-speed heat pump Photovoltaics Structural insulated panel (SIP) walls or walls and roof Triple-pane windows Unvented insulated attic ACH 50 < 2.5 or CFM50/SF of enclosure ≤ 0.25

Read the Case Study

Testimonials

Video Testimonial
Home owner (or occupant) Testimony
We’ve had a lot of referrals to neighbors and others in town. When we show homebuyers they can have a zero energy house for the same cost as a regular house, they don’t want to go anywhere else.
Testimony Citation
Ted Clifton, builder and owner of Zero Energy Plans

Additional Media

Finished Interiors

Under Construction

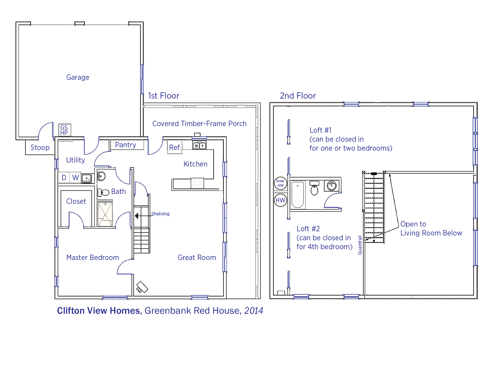
Floor Plan