Skip to main content
Built By

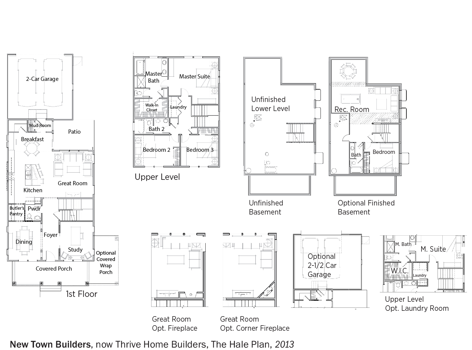
Thrive Home Builders

The Hale Plan

Project Address

Denver, CO

Conditioned Square Footage
3,560 sqft
Number of Bedrooms
3 Beds
Number of Bathrooms
2.5 Baths
Number of Floors Above Grade
2 Floors Above Grade
Home Type
Production
Climate Zone Temperature
Cold
Climate Zone Humidity
Dry

With PV

HERS Index with PV
3HERS (PV)
Average Monthly Energy Bill PV
$-7Average Monthly Energy Bill (PV)
Annual Energy Cost Savings with PV
$3,000Annual Energy Cost Savings (PV)
30 Year Savings with PV
$130,00030 Year Savings (PV)

EFFICIENT

HIA Year
HIA Status
Grand Winner
HIA Category
Production

Learn More

Key Features

Key Features
Photovoltaics ACH 50 < 2.5 or CFM50/SF of enclosure ≤ 0.25 Double Walls

Read the Case Study

Testimonials

Video Testimonial

Watch Videos

Home owner (or occupant) Testimony
The one thing we are really proud of is that we have been able to put together this zero-energy package on every home we offer in a production atmosphere at an affordable price that fits into the market.
Testimony Citation
Bill Rectanus, vice-president of homebuilding operations, New Town Builders

Additional Media

Finished Interiors

Under Construction

Other Images

Floor Plan