Skip to main content
Built By

Zero Net Now

Jewels Court

Project Address

Esopus, NY

Conditioned Square Footage
3,912 sqft
Number of Bedrooms
3 Beds
Number of Bathrooms
3.5 Baths
Number of Floors Above Grade
3 Floors Above Grade
Home Type
Custom
Climate Zone Temperature
Cold
Climate Zone Humidity
Humid

With PV

HERS Index with PV
-11HERS (PV)
Average Monthly Energy Bill PV
$-25Average Monthly Energy Bill (PV)
Annual Energy Cost Savings with PV
$5,000Annual Energy Cost Savings (PV)
30 Year Savings with PV
$233,00030 Year Savings (PV)

EFFICIENT

HIA Year
HIA Status
Winner
HIA Category
Housing Innovation Award

Learn More

Key Features

Key Features
All-electric home Cold-climate heat pump Energy / Heat recovery ventilator Ground source heat pump Heat pump water heater Insulated concrete form (ICF) walls and/or foundation Photovoltaics Triple-pane windows Unvented insulated attic ACH 50 < 2.5 or CFM50/SF of enclosure ≤ 0.25 Central Manifold Plumbing Design

Additional Details

Additional Details
Basement

Read the Case Study

See the Poster

Testimonials

Home owner (or occupant) Testimony
Our home has exceeded all of our expectations. We have yet to pay more than a connection fee to our energy company … as we have generated more energy than we used this year. There is a noticeable difference in air quality inside our home, especially during allergy season. For a family of allergy sufferers this is invaluable.
Testimony Citation
Homeowners

Additional Media

Finished Elevations

Finished Interiors

Other Images

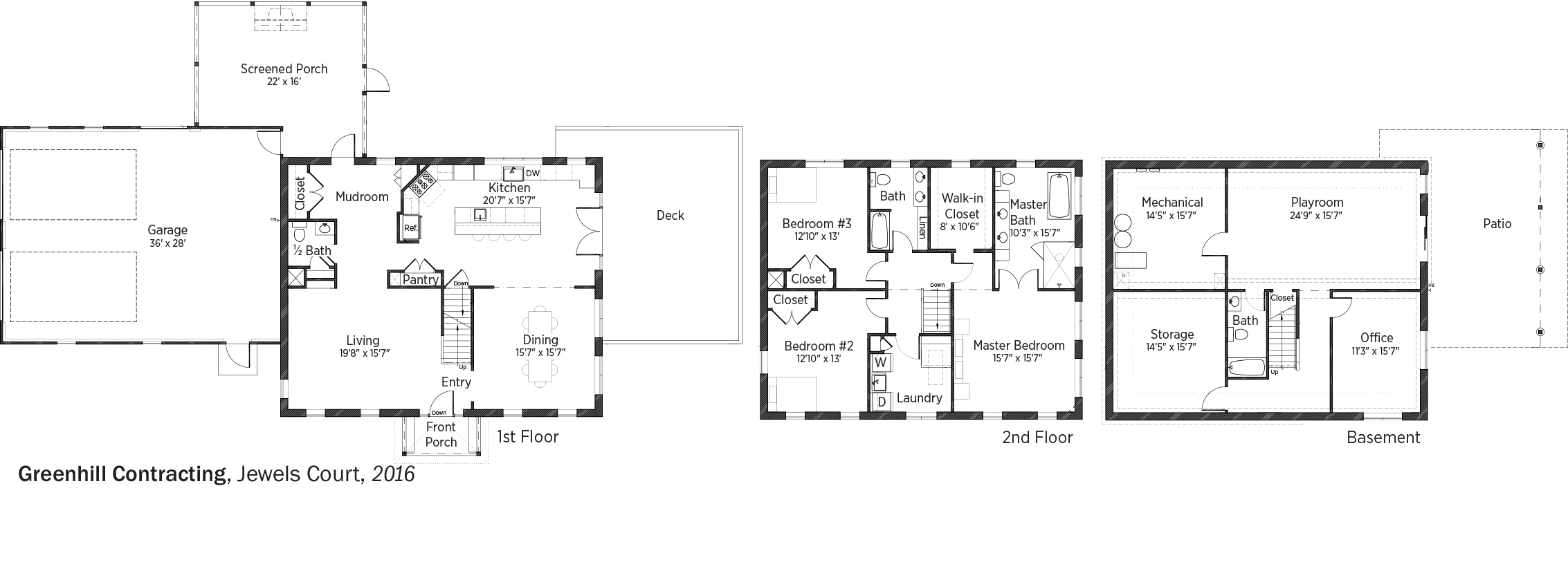
Floor Plan