Skip to main content
Built By

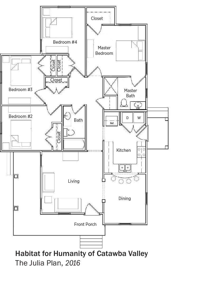
Habitat for Humanity of Catawba Valley

The Julia Plan

Project Address

Hickory, NC

Conditioned Square Footage
1,340 sqft
Number of Bedrooms
4 Beds
Number of Bathrooms
2.0 Baths
Number of Floors Above Grade
1 Floor Above Grade
Home Type
Affordable
Climate Zone Temperature
Mixed
Climate Zone Humidity
Humid

With PV

HERS Index with PV
44HERS (PV)
Average Monthly Energy Bill PV
$70Average Monthly Energy Bill (PV)
Annual Energy Cost Savings with PV
$800Annual Energy Cost Savings (PV)
30 Year Savings with PV
$34,00030 Year Savings (PV)

EFFICIENT

HIA Year
HIA Status
Winner
HIA Category
Housing Innovation Award

Learn More

Key Features

Key Features
All-electric home Energy / Heat recovery ventilator Heat pump water heater High-performance wall with continuous insulation

Read the Case Study

See the Poster

Testimonials

Video Testimonial
Home owner (or occupant) Testimony
The thing that amazes me the most about this house is the fact that we have so much more space, but we pay a fraction of the cost in utilities. Before we moved, we were living in an 800-square-foot residence and often paying over $200-$225 for utilities. Here, we have more space (over 1,300 square feet), but our utility bill is less than $100.
Testimony Citation
Homeowners

Additional Media

Finished Elevations

Under Construction

Other Images

Floor Plan