Skip to main content
Built By

Charles Thomas Homes

Lakeside Luxury

Project Address

Omaha, NE

Conditioned Square Footage
4,556 sqft
Number of Bedrooms
5 Beds
Number of Bathrooms
5.0 Baths
Number of Floors Above Grade
2 Floors Above Grade
Home Type
Custom
Climate Zone Temperature
Cold
Climate Zone Humidity
Humid

With PV

HERS Index with PV
48HERS (PV)
Average Monthly Energy Bill PV
$190Average Monthly Energy Bill (PV)
Annual Energy Cost Savings with PV
$1,700Annual Energy Cost Savings (PV)
30 Year Savings with PV
$86,00030 Year Savings (PV)

EFFICIENT

HIA Year
HIA Status
Winner
HIA Category
Housing Innovation Award

Learn More

Key Features

Key Features
Raised-heel trusses ACH 50 < 2.5 or CFM50/SF of enclosure ≤ 0.25

See the Poster

Testimonials

Video Testimonial

Watch Videos

Home owner (or occupant) Testimony
We build each home to the same standards, whether it costs $300,000 or $1,200,000. Our buyers seek us out … usually because of the reputation we have for building high-performance homes. The biggest reward for me is the personal satisfaction of knowing I am in the top 1% of all builders in the country.
Testimony Citation
Tim Lowndes, builder, Charles Thomas Homes

Additional Media

Finished Interiors

Under Construction

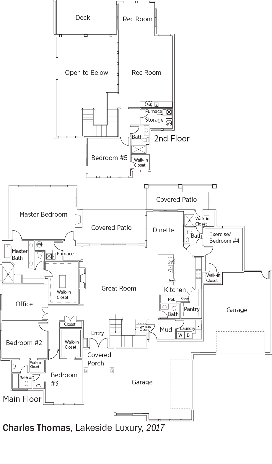
Floor Plan