Skip to main content
Built By

Zero Net Now

Old Kings Road

Project Address

Catskill, NY

Conditioned Square Footage
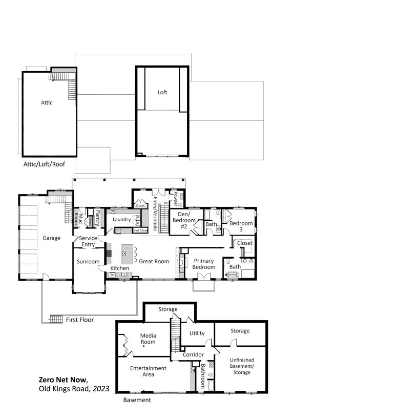
5,394 sqft
Number of Bedrooms
3 Beds
Number of Bathrooms
3.0 Baths
Number of Floors Above Grade
1 Floor Above Grade
Home Type
Custom
Climate Zone Temperature
Cold
Climate Zone Humidity
Humid

With PV

HERS Index with PV
-8HERS (PV)
Average Monthly Energy Bill PV
$7Average Monthly Energy Bill (PV)
Annual Energy Cost Savings with PV
$7,450Annual Energy Cost Savings (PV)
30 Year Savings with PV
$311,30030 Year Savings (PV)

EFFICIENT

HIA Year
HIA Status
Winner
HIA Category
Housing Innovation Award

Learn More

Key Features

Key Features
All-electric home Cold-climate heat pump Energy / Heat recovery ventilator Ground source heat pump Heat pump water heater Insulated concrete form (ICF) walls and/or foundation Photovoltaics Battery storage Triple-pane windows Unvented insulated attic ACH 50 < 2.5 or CFM50/SF of enclosure ≤ 0.25 Central Manifold Plumbing Design

Additional Details

Additional Details
Basement

See the Poster

Testimonials

Video Testimonial
Home owner (or occupant) Testimony
We feel secure as we plan our financial future knowing we are protected from rising and volatile energy costs. … We can sustain grid disruptions seamlessly with solar power, geothermal hot water and heat, and battery backups. … From January 1, 2023, until today, our energy cost is zero!
Testimony Citation
Homeowner

Additional Media

Finished Elevations

Finished Interiors

Under Construction

Floor Plan