Skip to main content
Built By

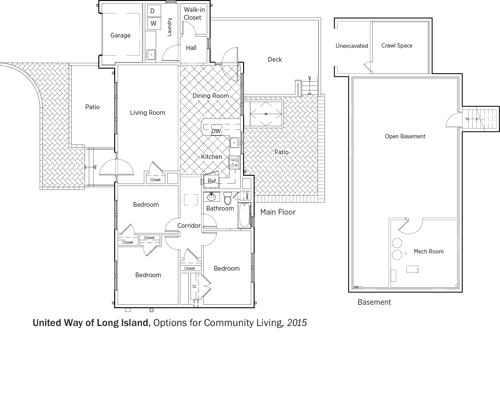
United Way of Long Island

Options for Community Living

Project Address

Deer Park, NY

Conditioned Square Footage
1,436 sqft
Number of Bedrooms
3 Beds
Number of Bathrooms
1.0 Bath
Number of Floors Above Grade
1 Floor Above Grade
Home Type
Affordable
Climate Zone Temperature
Mixed
Climate Zone Humidity
Humid

With PV

HERS Index with PV
4HERS (PV)
Average Monthly Energy Bill PV
$-40Average Monthly Energy Bill (PV)
Annual Energy Cost Savings with PV
$2,500Annual Energy Cost Savings (PV)
30 Year Savings with PV
$139,00030 Year Savings (PV)

EFFICIENT

HIA Year
HIA Status
Grand Winner
HIA Category
Affordable

Learn More

Key Features

Key Features
Energy / Heat recovery ventilator High-performance wall with continuous insulation Photovoltaics Unvented insulated attic ACH 50 < 2.5 or CFM50/SF of enclosure ≤ 0.25

Read the Case Study

Testimonials

Video Testimonial

Watch Videos

Home owner (or occupant) Testimony
We’ve made a 100% commitment to build to the DOE ZERH program moving forward with new and retrofit homes. When people talk Passive House, I say why go there when you could do this instead? Same with LEED. To me it’s a no-brainer. It’s got everything I’ve been looking for.
Testimony Citation
Rick Wertheim, program manager, United Way of Long Island Housing Development Corp.

Additional Media

Finished Elevations

Finished Interiors

Other Images

Floor Plan