Skip to main content
Built By

Healthy Communities

The Ridge

Project Address

Williamsburg, VA

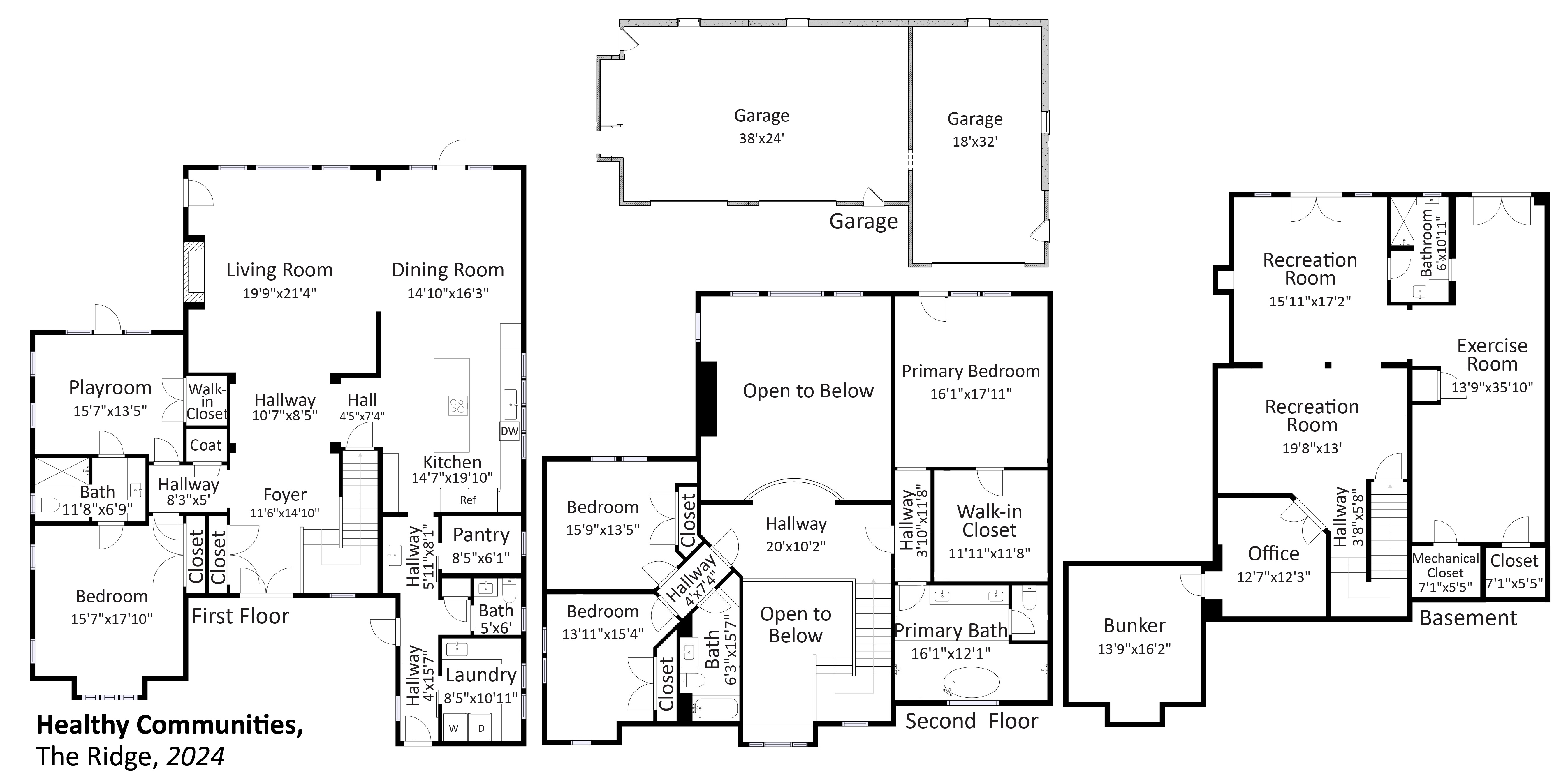
Conditioned Square Footage
5,482 sqft
Number of Bedrooms
4 Beds
Number of Bathrooms
5.0 Baths
Number of Floors Above Grade
2 Floors Above Grade
Home Type
Custom
Climate Zone Temperature
Mixed
Climate Zone Humidity
Humid

With PV

HERS Index with PV
15HERS (PV)
Average Monthly Energy Bill PV
$75Average Monthly Energy Bill (PV)
Annual Energy Cost Savings with PV
$7,250Annual Energy Cost Savings (PV)
30 Year Savings with PV
$302,50030 Year Savings (PV)

EFFICIENT

HIA Year
HIA Status
Winner
HIA Category
Custom

Learn More

Key Features

Key Features
Compact (core) plumbing design Energy / Heat recovery ventilator Electric Vehicle Charger Installed or Wired for Charger Heat pump water heater High-performance wall with continuous insulation Photovoltaics Raised-heel trusses Sensor controls for better indoor air quality Unvented insulated attic ACH 50 < 2.5 or CFM50/SF of enclosure ≤ 0.25 Hot Water Recirculation Pump

See the Poster

Testimonials

Video Testimonial
Home owner (or occupant) Testimony
One of the most rewarding aspects of living in The Ridge is the incredible indoor air quality. As a family with three bird dogs, we’ve noticed a significant improvement in our health and comfort, making allergies a thing of the past… The Ridge is not just a structure; it’s our sanctuary.
Testimony Citation
Homeowner

Additional Media

Virtual Tour

Virtual Tour

Finished Elevations

Finished Interiors

Under Construction

Other Images

Floor Plan