Skip to main content
Built By

CVH Inc. DBA Clifton View Homes

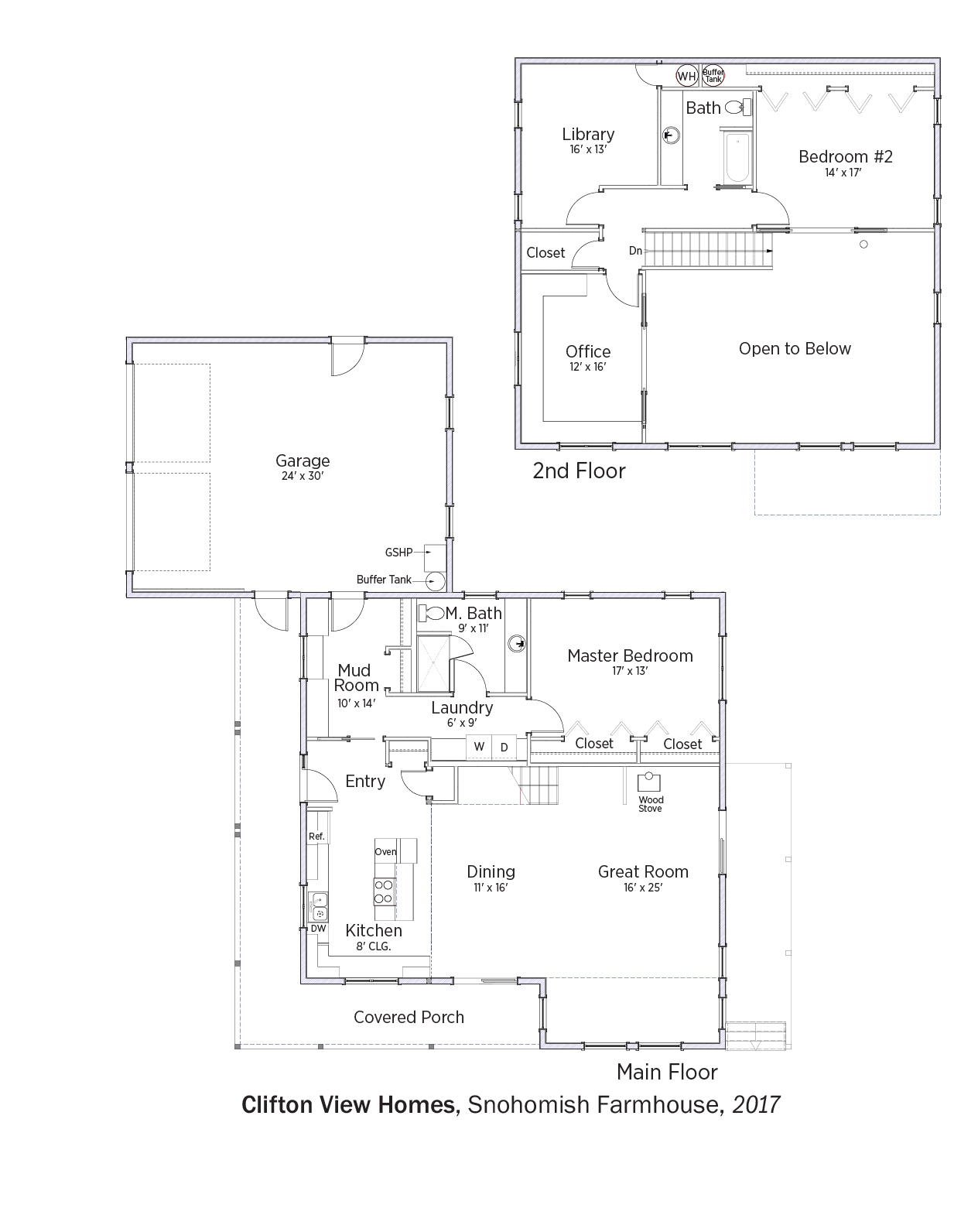
Snohomish Farmhouse

Project Address

Snohomish, WA

Conditioned Square Footage
2,417 sqft
Number of Bedrooms
2 Beds
Number of Bathrooms
2.0 Baths
Number of Floors Above Grade
2 Floors Above Grade
Home Type
Custom
Climate Zone Temperature
Mixed
Climate Zone Humidity
Marine

With PV

HERS Index with PV
-9HERS (PV)
Average Monthly Energy Bill PV
$-8Average Monthly Energy Bill (PV)
Annual Energy Cost Savings with PV
$1,700Annual Energy Cost Savings (PV)
30 Year Savings with PV
$72,00030 Year Savings (PV)

EFFICIENT

HIA Year
HIA Status
Honorable Mention

Learn More

Key Features

Key Features
All-electric home Compact (core) plumbing design Electric Vehicle Charger Installed or Wired for Charger Ground source heat pump Heat pump water heater Photovoltaics Structural insulated panel (SIP) walls or walls and roof Triple-pane windows Unvented insulated attic ACH 50 < 2.5 or CFM50/SF of enclosure ≤ 0.25

Testimonials

Video Testimonial
Home owner (or occupant) Testimony
It is important to let you know we love this house! Design, construction, project management, and quality. It is very livable.
Testimony Citation
Homeowners

Additional Media

Finished Elevations

Finished Interiors

Other Images

Floor Plan