Skip to main content
Built By

AquaZephyr, LLC

TREE at EcoVillage

Project Address

Ithaca, NY

Conditioned Square Footage
467 sqft
Number of Bedrooms
1 Bed
Number of Bathrooms
1.0 Bath
Number of Floors Above Grade
1 Floor Above Grade
Home Type
Multifamily
Climate Zone Temperature
Cold
Climate Zone Humidity
Humid

With PV

HERS Index with PV
26HERS (PV)
Average Monthly Energy Bill PV
$50Average Monthly Energy Bill (PV)
Annual Energy Cost Savings with PV
$1,100Annual Energy Cost Savings (PV)
30 Year Savings with PV
$41,00030 Year Savings (PV)

EFFICIENT

HIA Year
HIA Status
Winner
HIA Category
Housing Innovation Award

Learn More

Key Features

Key Features
All-electric home Energy / Heat recovery ventilator Electric Vehicle Charger Installed or Wired for Charger High-performance wall with continuous insulation Photovoltaics Triple-pane windows ACH 50 < 2.5 or CFM50/SF of enclosure ≤ 0.25

Read the Case Study

See the Poster

Testimonials

Video Testimonial
Home owner (or occupant) Testimony
What I like about the DOE ZERH program is the clear overlap with ENERGY STAR, the fantastic support, and the promotion of zero net energy. Our customers are thrilled to be improving their building performance, reducing environmental impacts and pollution, and reducing maintenance. In most cases, we find building to zero net energy ready levels is not a significant added cost.
Testimony Citation
Kendall Carpenter, builder, AquaZephyr LLC

Additional Media

Finished Elevations

Finished Interiors

Under Construction

Other Images

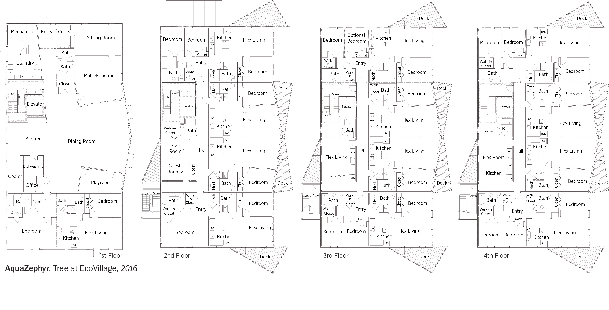
Floor Plan