Skip to main content
Built By

Sunroc Builders, LLC

Bates Avenue

Project Address

Lakeland, FL

Conditioned Square Footage
1,104 sqft
Number of Bedrooms
3 Beds
Number of Bathrooms
2.0 Baths
Number of Floors Above Grade
1 Floor Above Grade
Home Type
Affordable
Climate Zone Temperature
Hot
Climate Zone Humidity
Humid

With PV

HERS Index with PV
57HERS (PV)
Average Monthly Energy Bill PV
$70Average Monthly Energy Bill (PV)
Annual Energy Cost Savings with PV
$500Annual Energy Cost Savings (PV)
30 Year Savings with PV
$21,00030 Year Savings (PV)

EFFICIENT

HIA Year
HIA Status
Winner
HIA Category
Housing Innovation Award

Learn More

Key Features

Key Features
All-electric home Heat pump water heater Structural insulated panel (SIP) walls or walls and roof Unvented insulated attic ACH 50 < 2.5 or CFM50/SF of enclosure ≤ 0.25

Read the Case Study

Testimonials

Home owner (or occupant) Testimony
This house is my first DOE Zero Energy Ready certified home and I’m working on my second DOE ZER home. I’ve made a 100% commitment to build to DOE ZERH. This will be my niche. I researched other home labeling programs, but the DOE program gave the most bang for the buck. It fills the bill of the other programs, but I like DOE’s marketing support and it doesn’t cost me nearly as much as other programs.
Testimony Citation
Scott Willemsen, founder, Sunroc Builders

Additional Media

Finished Elevations

Finished Interiors

Under Construction

Other Images

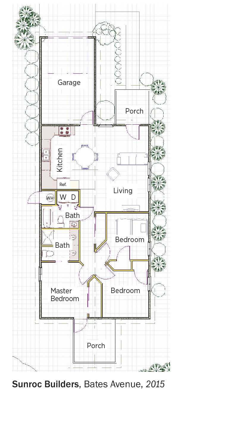
Floor Plan