Church Community Housing Corp. 1
Project Address
Charlestown, RI
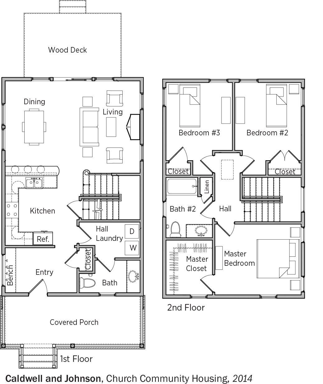
Conditioned Square Footage
2,244 sqft
Number of Bedrooms
3 Beds
Number of Bathrooms
1.5 Baths
Number of Floors Above Grade
2 Floors Above Grade
Home Type
Affordable
Climate Zone Temperature
Cold
With PV
HERS Index with PV
47HERS (PV)
Average Monthly Energy Bill PV
$195Average Monthly Energy Bill (PV)
Annual Energy Cost Savings with PV
$1,300Annual Energy Cost Savings (PV)
30 Year Savings with PV
$55,00030 Year Savings (PV)
EFFICIENT
HIA Year
HIA Status
Winner
HIA Category
Housing Innovation Award
Learn More
Key Features
Key Features
All-electric home Cold-climate heat pump Heat pump water heater High-performance wall with continuous insulation Triple-pane windows Unvented insulated attic ACH 50 < 2.5 or CFM50/SF of enclosure ≤ 0.25
Read the Case Study
Testimonials
Home owner (or occupant) TestimonyHigh-end houses are neat and fun but I’m trying to show you can do this with affordable homes, too; you just need a tight envelope and good HVAC. No reason why this [DOE ZERH] shouldn’t be done across the board. None at all!Testimony CitationBuilder Dave Caldwell