Skip to main content
Built By

Insulsteel

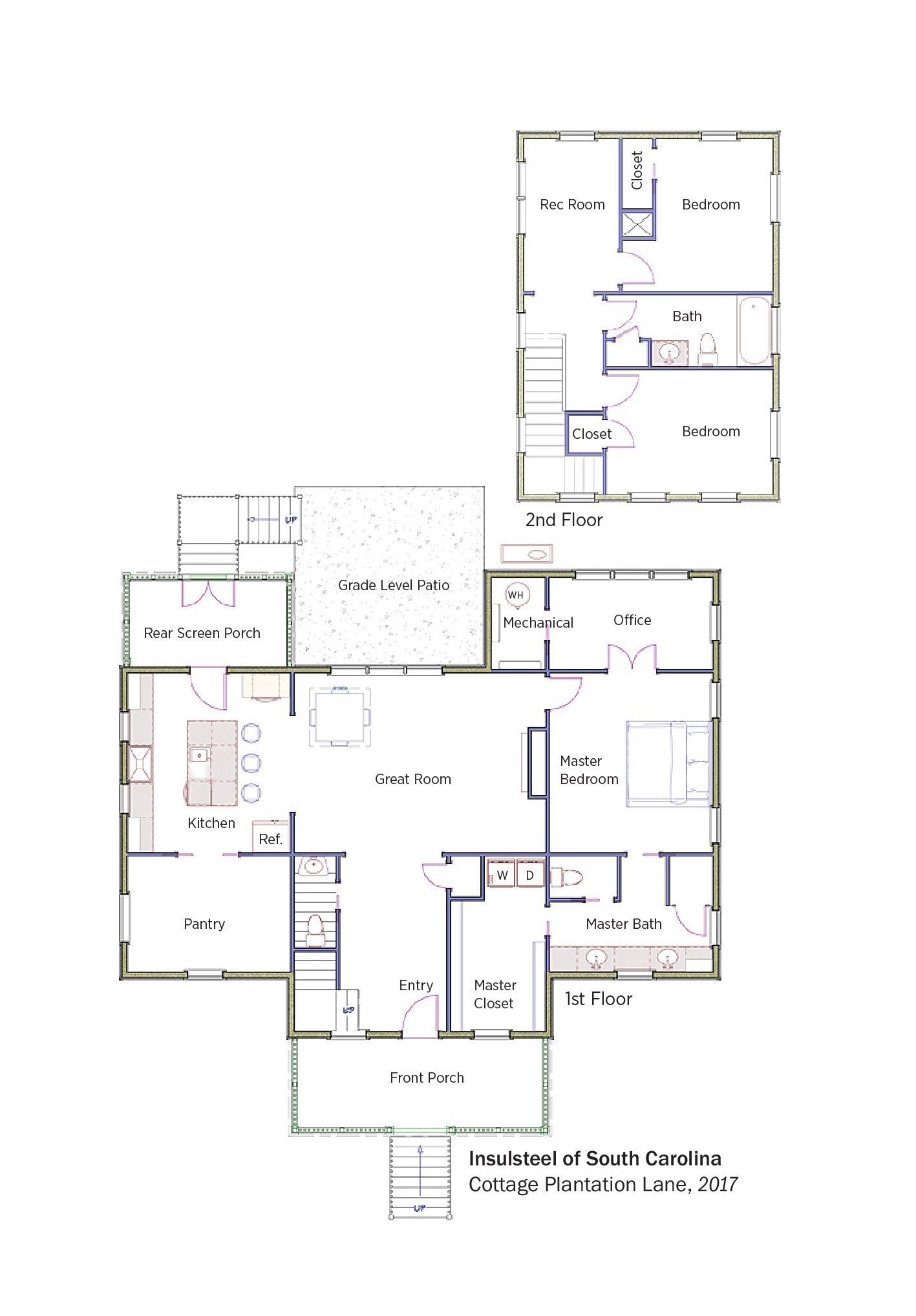
Cottage Plantation Lane

Project Address

Charleston, SC

Conditioned Square Footage
2,260 sqft
Number of Bedrooms
3 Beds
Number of Bathrooms
3.5 Baths
Number of Floors Above Grade
2 Floors Above Grade
Home Type
Custom
Climate Zone Temperature
Mixed
Climate Zone Humidity
Humid

With PV

HERS Index with PV
5HERS (PV)
Average Monthly Energy Bill PV
$25Average Monthly Energy Bill (PV)
Annual Energy Cost Savings with PV
$3,000Annual Energy Cost Savings (PV)
30 Year Savings with PV
$120,00030 Year Savings (PV)

EFFICIENT

HIA Year
HIA Status
Honorable Mention

Learn More

Key Features

Key Features
All-electric home High-efficiency variable-speed heat pump Photovoltaics Structural insulated panel (SIP) walls or walls and roof Unvented insulated attic ACH 50 < 2.5 or CFM50/SF of enclosure ≤ 0.25

Testimonials

Home owner (or occupant) Testimony
The biggest reward for us is client satisfaction with our energy efficiency, indoor air quality, structural integrity, DOE Zero Energy Ready design, and low total cost of ownership. Insulsteel’s EcoShell homes are built with our own light-gauge steel and EPS panels for superior structural integrity and resistance to storms, water, insects, and fire.
Testimony Citation
Steve Bostic, president, Insulsteel Building Enclosures, LLC

Additional Media

Finished Elevations

Finished Interiors

Under Construction

Floor Plan