Skip to main content
Built By

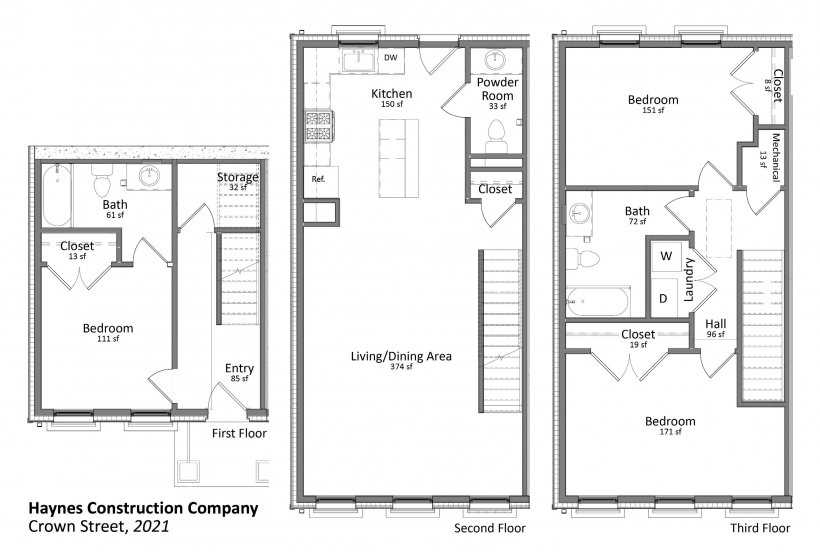
Haynes Construction Company

Crown Street

Project Address

Meriden, CT

Conditioned Square Footage
1,000 sqft
Number of Bedrooms
3 Beds
Number of Bathrooms
3.0 Baths
Number of Floors Above Grade
2 Floors Above Grade
Home Type
Affordable
Climate Zone Temperature
Cold
Climate Zone Humidity
Humid

With PV

HERS Index with PV
31HERS (PV)
Average Monthly Energy Bill PV
$120Average Monthly Energy Bill (PV)
Annual Energy Cost Savings with PV
$2,950Annual Energy Cost Savings (PV)
30 Year Savings with PV
$119,80030 Year Savings (PV)

EFFICIENT

HIA Year
HIA Status
Winner
HIA Category
Housing Innovation Award

Learn More

Key Features

Key Features
All-electric home Cold-climate heat pump Compact (core) plumbing design Energy / Heat recovery ventilator Electric Vehicle Charger Installed or Wired for Charger High-performance wall with continuous insulation Raised-heel trusses Triple-pane windows ACH 50 < 2.5 or CFM50/SF of enclosure ≤ 0.25

See the Poster

Testimonials

Home owner (or occupant) Testimony
The teams are extremely proud when we hit our efficiency goals. It’s always rewarding to hand over a new building to the affordable housing entity, but it’s even more rewarding when you know every tenant is realizing significant energy savings [and] increased indoor air quality in a high-performance home.
Testimony Citation
Builder

Additional Media

Finished Elevations

Finished Interiors

Floor Plan