Skip to main content
Built By

John Hubert Associates, LLC

EXIT-0 House

Project Address

North Cape May, NJ

Conditioned Square Footage
1,871 sqft
Number of Bedrooms
3 Beds
Number of Bathrooms
2.5 Baths
Number of Floors Above Grade
2 Floors Above Grade
Home Type
Custom
Climate Zone Temperature
Mixed
Climate Zone Humidity
Humid

With PV

HERS Index with PV
9HERS (PV)
Average Monthly Energy Bill PV
$40Average Monthly Energy Bill (PV)
Annual Energy Cost Savings with PV
$2,000Annual Energy Cost Savings (PV)
30 Year Savings with PV
$93,00030 Year Savings (PV)

EFFICIENT

HIA Year
HIA Status
Winner
HIA Category
Housing Innovation Award

Learn More

Key Features

Key Features
All-electric home Energy / Heat recovery ventilator High-performance wall with continuous insulation Photovoltaics Unvented insulated attic ACH 50 < 2.5 or CFM50/SF of enclosure ≤ 0.25 Central Manifold Plumbing Design

Read the Case Study

Testimonials

Home owner (or occupant) Testimony
The home tested significantly higher than the benchmarks we set for ourselves, and we had high benchmarks.
Testimony Citation
Builder and Architect John Hubert

Additional Media

Finished Elevations

Finished Interiors

Other Images

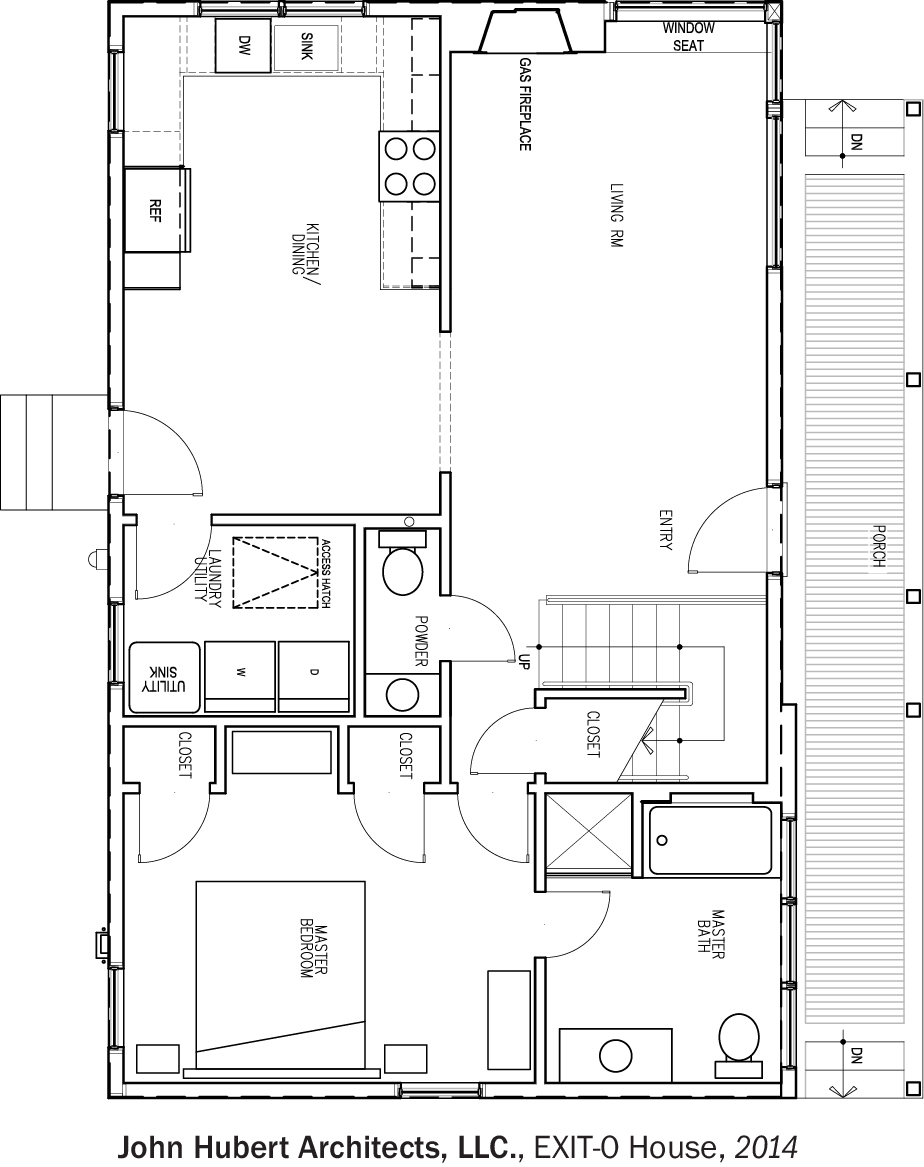
Floor Plan