Skip to main content
Built By

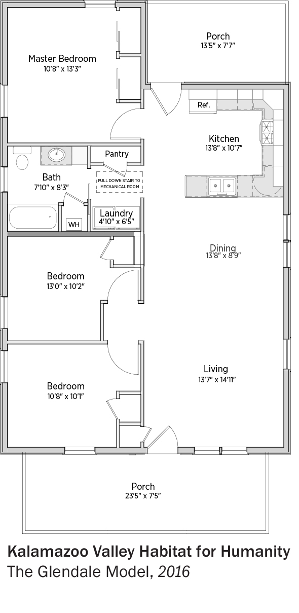
Kalamazoo Valley Habitat for Humanity

Glendale

Project Address

Kalamazoo, MI

Conditioned Square Footage
1,120 sqft
Number of Bedrooms
3 Beds
Number of Bathrooms
1.0 Bath
Number of Floors Above Grade
1 Floor Above Grade
Home Type
Affordable
Climate Zone Temperature
Cold
Climate Zone Humidity
Humid

With PV

HERS Index with PV
46HERS (PV)
Average Monthly Energy Bill PV
$70Average Monthly Energy Bill (PV)
Annual Energy Cost Savings with PV
$740Annual Energy Cost Savings (PV)
30 Year Savings with PV
$39,00030 Year Savings (PV)

EFFICIENT

HIA Year
HIA Status
Winner
HIA Category
Housing Innovation Award

Learn More

Key Features

Key Features
Compact (core) plumbing design Energy / Heat recovery ventilator High-performance wall with continuous insulation Raised-heel trusses Triple-pane windows ACH 50 < 2.5 or CFM50/SF of enclosure ≤ 0.25 Central Manifold Plumbing Design

Read the Case Study

See the Poster

Testimonials

Video Testimonial

Watch Videos

Home owner (or occupant) Testimony
[In] the home we were renting … our energy bills in the winter were often $200-$300 per month, which took a huge portion of our income, and the home was still drafty and uncomfortable. We are very excited to hear the energy bills and mortgage will be so low, probably much lower combined than just our rent was before.
Testimony Citation
Homeowner

Additional Media

Finished Elevations

Finished Interiors

Under Construction

Other Images

Floor Plan