Skip to main content
Built By

Simple Integrity LLC

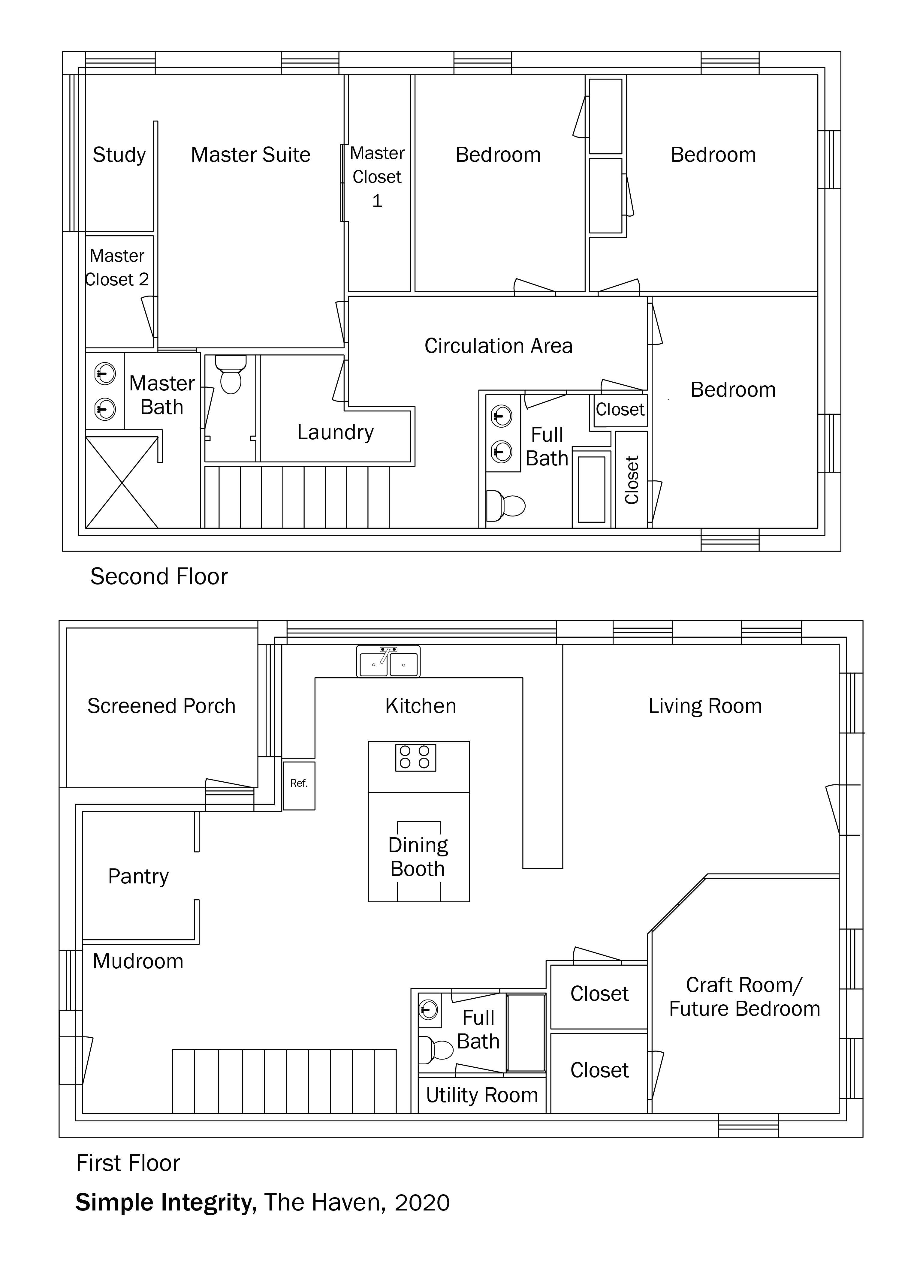
The Haven

Project Address

Cooperstown, NY

Conditioned Square Footage
2,643 sqft
Number of Bedrooms
5 Beds
Number of Bathrooms
3.0 Baths
Number of Floors Above Grade
2 Floors Above Grade
Home Type
Custom
Climate Zone Temperature
Cold
Climate Zone Humidity
Humid

With PV

HERS Index with PV
30HERS (PV)
Average Monthly Energy Bill PV
$90Average Monthly Energy Bill (PV)
Annual Energy Cost Savings with PV
$2,550Annual Energy Cost Savings (PV)
30 Year Savings with PV
$106,70030 Year Savings (PV)

EFFICIENT

HIA Year
HIA Status
Honorable Mention

Learn More

Key Features

Key Features
All-electric home Energy / Heat recovery ventilator Heat pump water heater Raised-heel trusses Triple-pane windows ACH 50 < 2.5 or CFM50/SF of enclosure ≤ 0.25 Double Walls Central Manifold Plumbing Design

Testimonials

Home owner (or occupant) Testimony
[In] our old house, we were paying about $4,000 a year to heat it. Now we pay a grand total of $250 a year, and our [new] house [is double] in size.
Testimony Citation
Homeowner

Additional Media

Finished Elevations

Finished Interiors

Under Construction

Floor Plan