Skip to main content
Built By

BPC Green Builders

Lakeside Cottage

Project Address

Danbury, CT

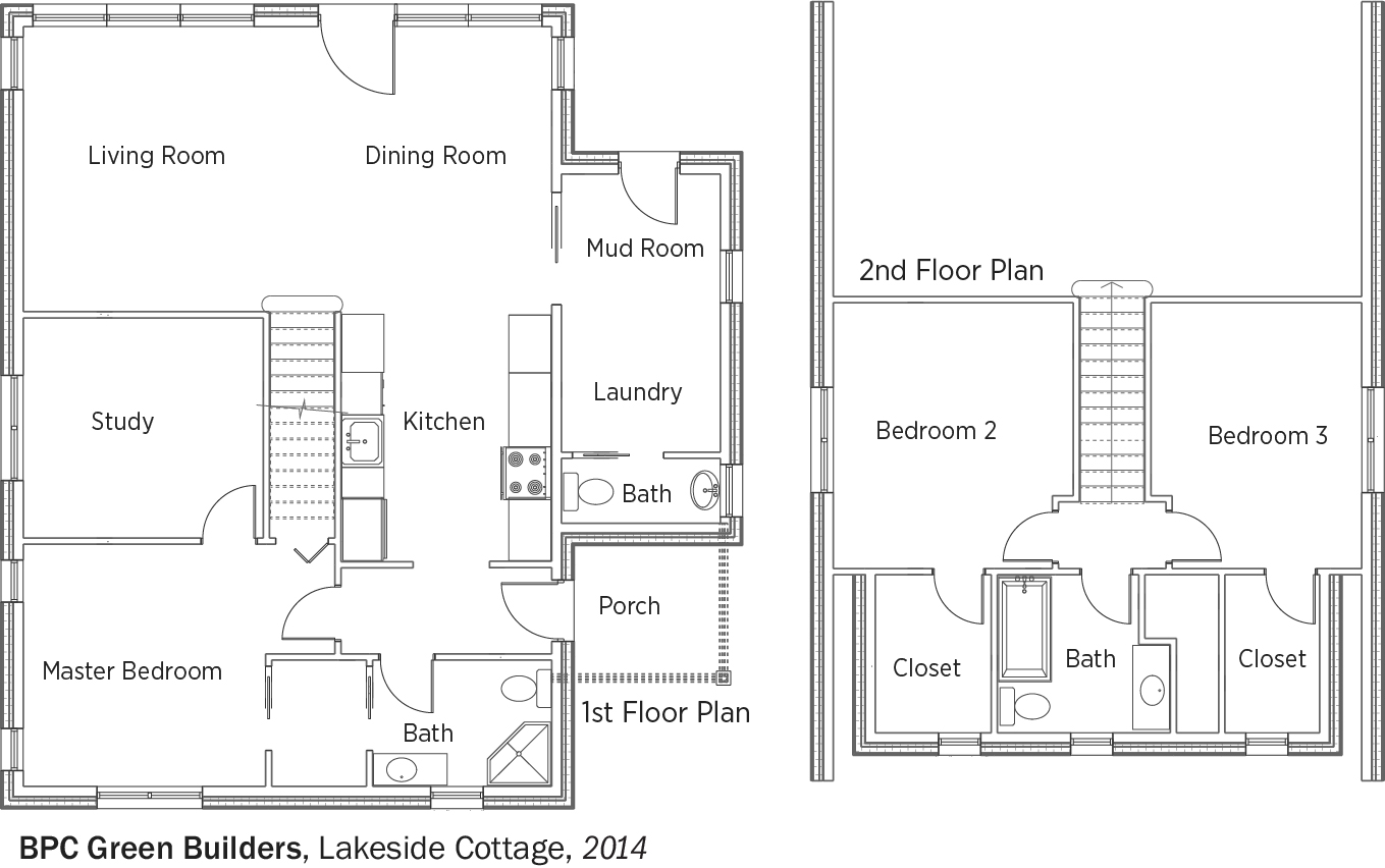
Conditioned Square Footage
1,680 sqft
Number of Bedrooms
3 Beds
Number of Bathrooms
2.5 Baths
Number of Floors Above Grade
2 Floors Above Grade
Home Type
Custom
Climate Zone Temperature
Cold

With PV

HERS Index with PV
35HERS (PV)
Average Monthly Energy Bill PV
$115Average Monthly Energy Bill (PV)
Annual Energy Cost Savings with PV
$1,000Annual Energy Cost Savings (PV)
30 Year Savings with PV
$43,00030 Year Savings (PV)

EFFICIENT

HIA Year
HIA Status
Winner
HIA Category
Housing Innovation Award

Learn More

Key Features

Key Features
All-electric home Cold-climate heat pump Energy / Heat recovery ventilator High-performance wall with continuous insulation Triple-pane windows ACH 50 < 2.5 or CFM50/SF of enclosure ≤ 0.25

Read the Case Study

Testimonials

Video Testimonial

Watch Videos

Home owner (or occupant) Testimony
This past winter was exceptionally cold, yet our highest monthly heating cost was $60, whereas my neighbors were spending hundreds if not thousands per month. The energy performance … is not only a great personal benefit, but also a great social benefit because we are doing our part to help our community lower its energy footprint.
Testimony Citation
Homeowner and builder Mike Trolle

Additional Media

Under Construction

Other Images

Floor Plan