Skip to main content
Built By

Mutual Housing California

Mutual Housing at Spring Lake

Project Address

Sacramento, CA

Conditioned Square Footage
64,604 sqft
Home Type
Multifamily
Climate Zone Temperature
Hot
Climate Zone Humidity
Dry

Without PV

Average Monthly Energy Bill
$10Average Monthly Energy Bill
30 Year Savings
$40,00030 Year Savings

EFFICIENT

HIA Year
HIA Status
Winner
HIA Category
Housing Innovation Award

Learn More

Key Features

Key Features
Air-to-water heat pump All-electric home Heat pump water heater Photovoltaics Raised-heel trusses Hot Water Recirculation Pump

Additional Details

Additional Details
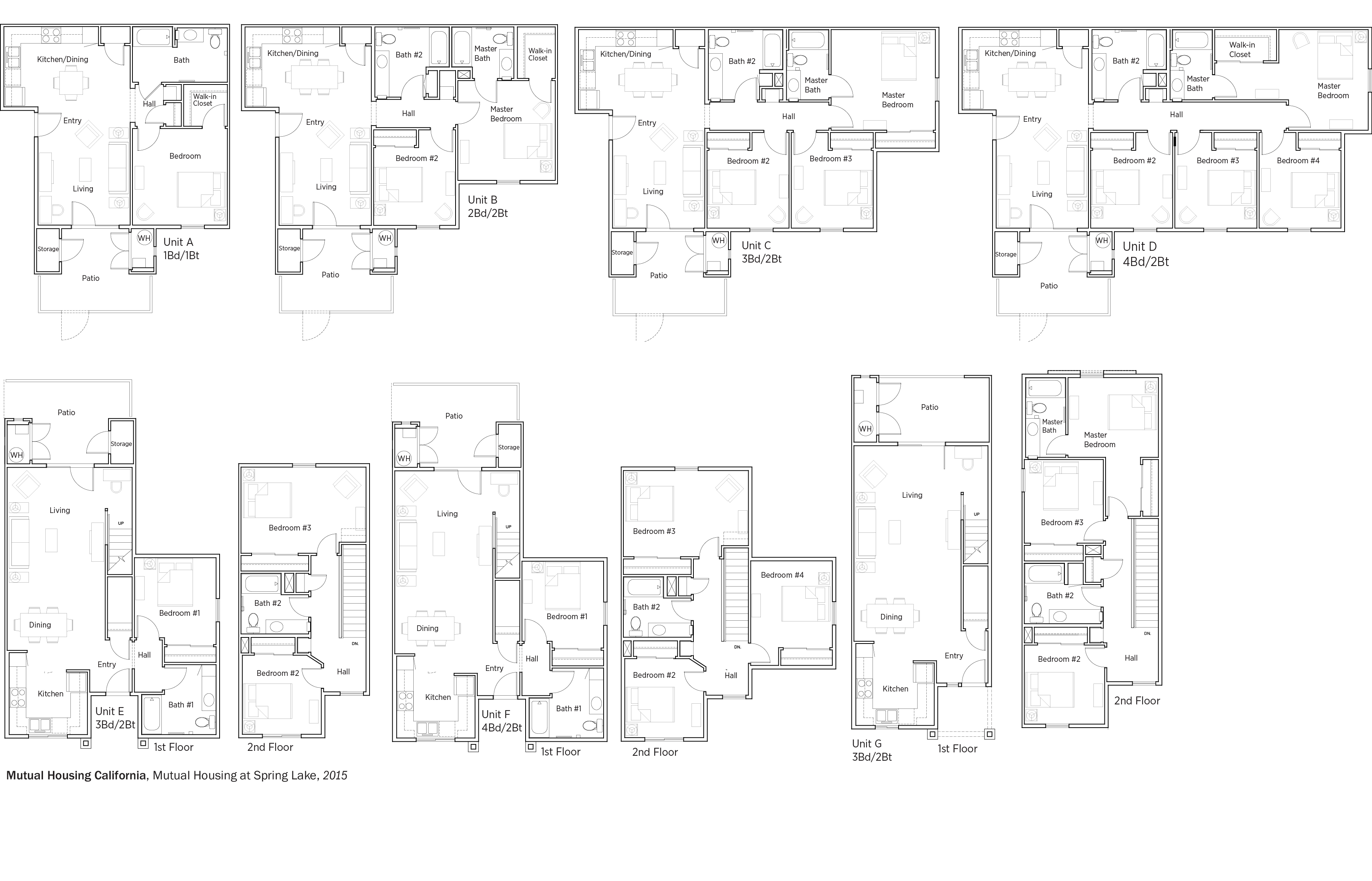
Two 3-story apt. bldgs; Four 2-story bldgs 62 units

Read the Case Study

Testimonials

Video Testimonial
Home owner (or occupant) Testimony
Before moving into Mutual Housing at Spring Lake, my family and I lived in a two-bedroom apartment …that had troubles… with heat, the plumbing, and battling with cockroaches. It was hard dealing with our children’s medical issues … and coming to an apartment that we dreaded living in. But things took a 180 when we moved into Mutual Housing at Spring Lake. We now live in a new four-bedroom apartment and we love it! The day we moved in, my 7-year-old son ran inside yelling 'I love my house, I love my house!' What was most important to me was that I had a decent home in order to handle the medical attention that my children need. But we got more than decent; we got perfection. Even though we have some struggles, at least now we are happy and proud to be living at Mutual Housing at Spring Lake.
Testimony Citation
Homeowner

Additional Media

Finished Elevations

Finished Interiors

Under Construction

Other Images

Floor Plan