Skip to main content
Built By

Jenkins Builders, LLC

Nottingham Zero Energy Home

Project Address

Nottingham, MD

Conditioned Square Footage
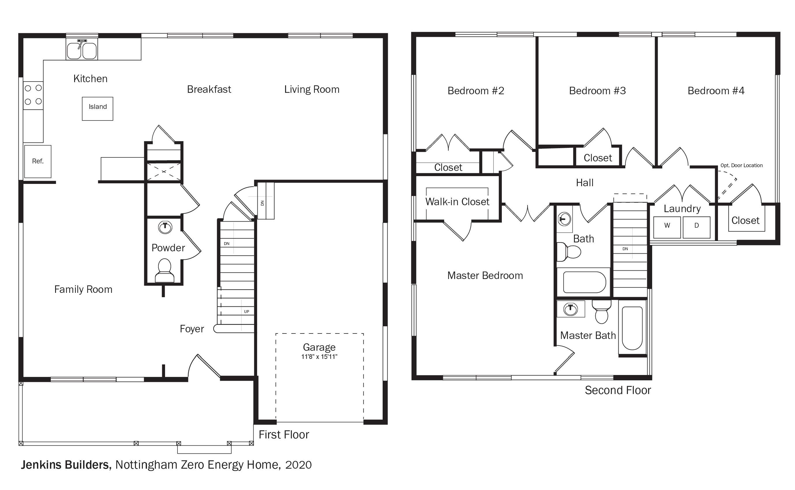
2,652 sqft
Number of Bedrooms
4 Beds
Number of Bathrooms
2.0 Baths
Number of Floors Above Grade
2 Floors Above Grade
Home Type
Custom
Climate Zone Temperature
Mixed
Climate Zone Humidity
Humid

With PV

HERS Index with PV
0HERS (PV)
Average Monthly Energy Bill PV
$10Average Monthly Energy Bill (PV)
Annual Energy Cost Savings with PV
$3,200Annual Energy Cost Savings (PV)
30 Year Savings with PV
$132,90030 Year Savings (PV)

EFFICIENT

HIA Year
HIA Status
Honorable Mention

Learn More

Key Features

Key Features
All-electric home Compact (core) plumbing design Heat pump water heater High-performance wall with continuous insulation Photovoltaics ACH 50 < 2.5 or CFM50/SF of enclosure ≤ 0.25 Central Manifold Plumbing Design

Additional Details

Additional Details
Basement

Testimonials

Video Testimonial

Watch Videos

Home owner (or occupant) Testimony
… attention to detail…made the building process truly enjoyable …
Testimony Citation
Homeowner

Additional Media

Finished Elevations

Finished Interiors

Other Images

Floor Plan