Skip to main content
Built By

Imery & Co, LLC

Proud Green Home

Project Address

Serenbe, GA

Conditioned Square Footage
2,811 sqft
Number of Bedrooms
3 Beds
Number of Bathrooms
2.5 Baths
Number of Floors Above Grade
2 Floors Above Grade
Home Type
Custom
Climate Zone Temperature
Mixed
Climate Zone Humidity
Humid

With PV

HERS Index with PV
-10HERS (PV)
Average Monthly Energy Bill PV
$4Average Monthly Energy Bill (PV)
Annual Energy Cost Savings with PV
$2,000Annual Energy Cost Savings (PV)
30 Year Savings with PV
$81,00030 Year Savings (PV)

EFFICIENT

HIA Year
HIA Status
Winner
HIA Category
Housing Innovation Award

Learn More

Key Features

Key Features
All-electric home Energy / Heat recovery ventilator High-efficiency variable-speed heat pump High-performance wall with continuous insulation Photovoltaics Unvented insulated attic ACH 50 < 2.5 or CFM50/SF of enclosure ≤ 0.25 Central Manifold Plumbing Design

Read the Case Study

Testimonials

Video Testimonial

Watch Videos

Home owner (or occupant) Testimony
This home is green, eco-friendly, energy and water efficient, durable, comfortable, and low maintenance. We are showing that it’s not rocket science. It’s just paying attention to details and doing it right.
Testimony Citation
Builder Luis Imery

Additional Media

Finished Elevations

Finished Interiors

Under Construction

Other Images

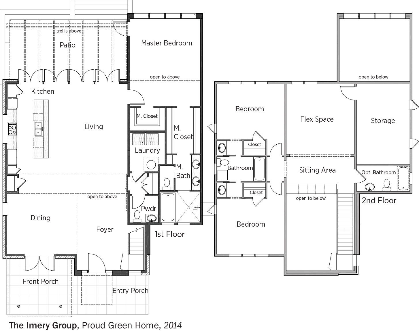
Floor Plan