Skip to main content
Built By

Insulsteel

Sonny Boy Lane

Project Address

Charleston, SC

Conditioned Square Footage
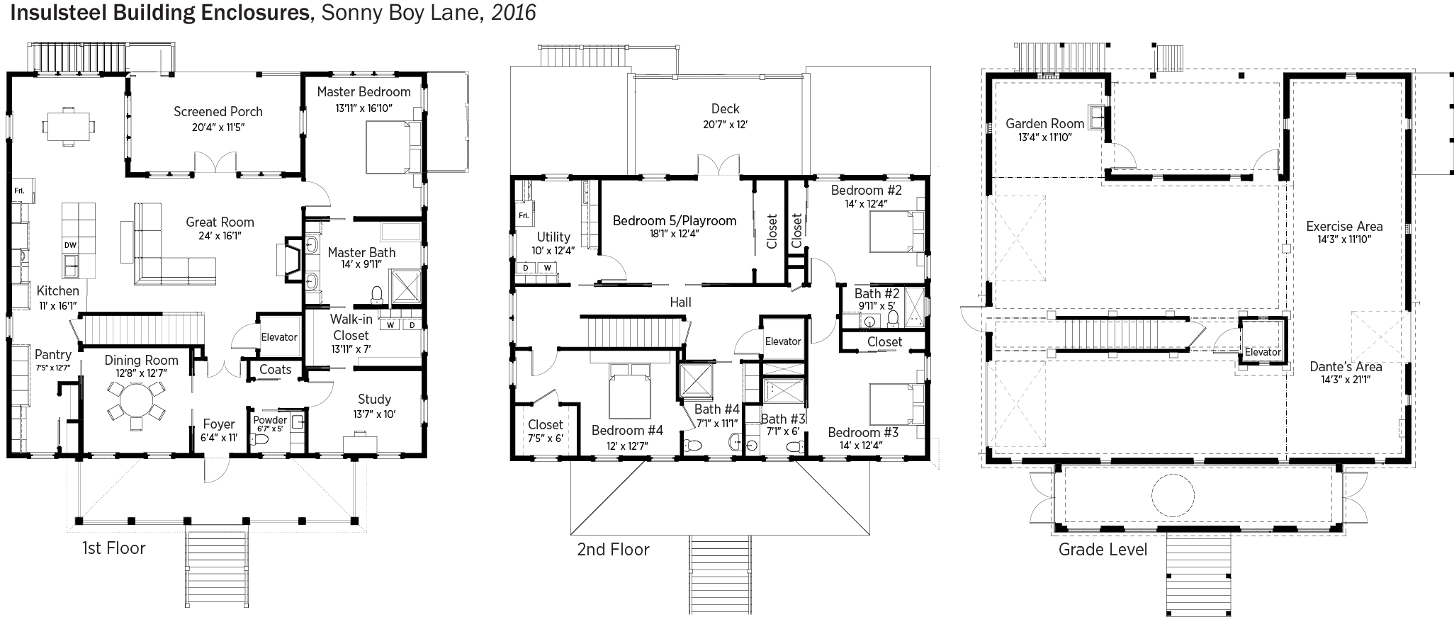
3,756 sqft
Number of Bedrooms
5 Beds
Number of Bathrooms
5.0 Baths
Number of Floors Above Grade
2 Floors Above Grade
Home Type
Custom
Climate Zone Temperature
Hot
Climate Zone Humidity
Humid

With PV

HERS Index with PV
12HERS (PV)
Average Monthly Energy Bill PV
$50Average Monthly Energy Bill (PV)
Annual Energy Cost Savings with PV
$4,000Annual Energy Cost Savings (PV)
30 Year Savings with PV
$167,00030 Year Savings (PV)

EFFICIENT

HIA Year
HIA Status
Winner
HIA Category
Housing Innovation Award

Learn More

Key Features

Key Features
All-electric home High-efficiency variable-speed heat pump Photovoltaics Battery storage Structural insulated panel (SIP) walls or walls and roof Unvented insulated attic

Read the Case Study

Testimonials

Video Testimonial

Watch Videos

Home owner (or occupant) Testimony
We love our new energy-efficient home knowing that our initial investment will pay for itself over the next 10 years. It’s a pleasure opening our electrical bill to see the lowest amounts we have ever paid. Our HVAC system is very quiet and the LEDs are cool to the touch. What is not to love in our new energy-efficient home!
Testimony Citation
Homeowner

Additional Media

Finished Elevations

Finished Interiors

Other Images

Floor Plan