Skip to main content
Built By

P3 Builder Group, Inc

Way Back Barn

Project Address

Sagaponack, NY

Conditioned Square Footage
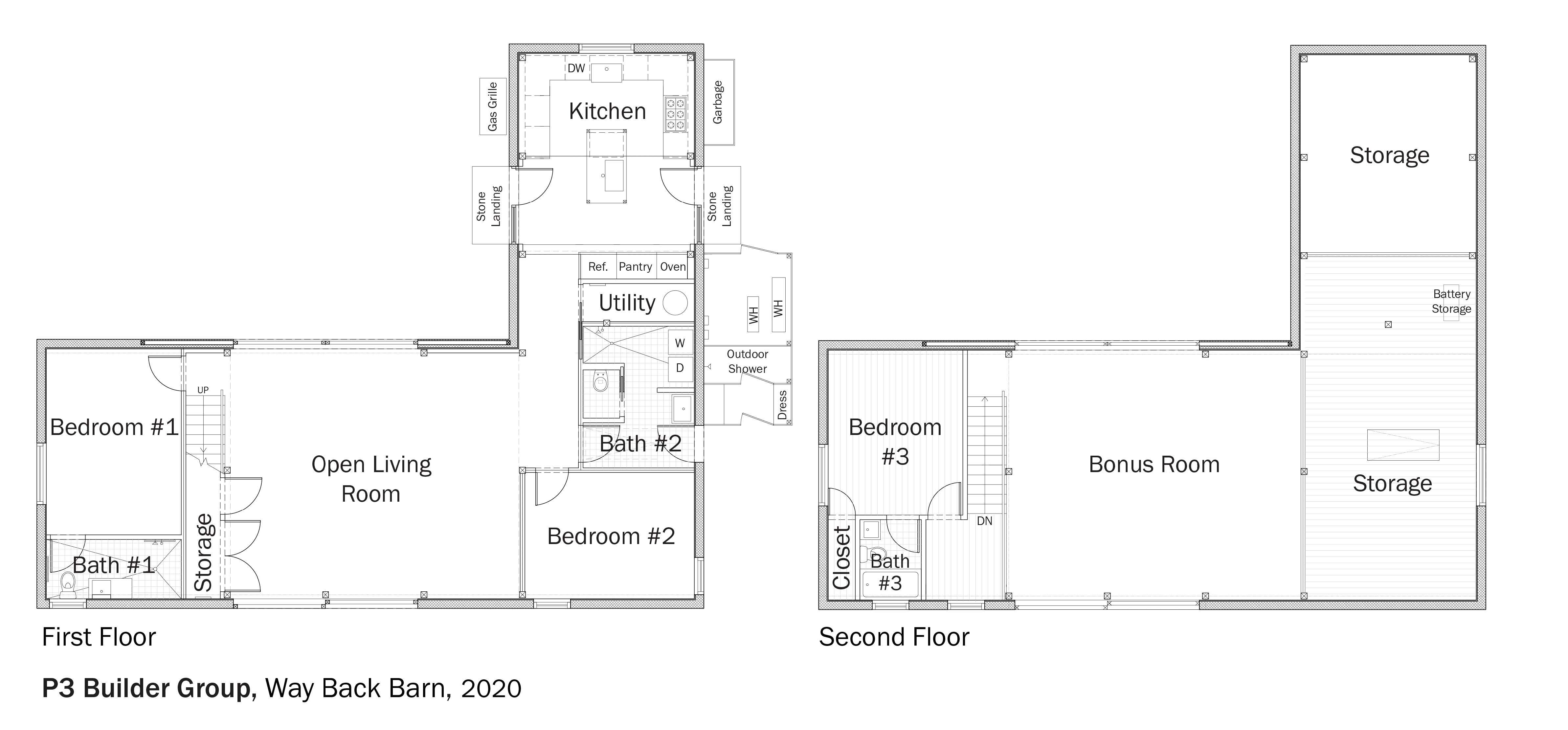
2,200 sqft
Number of Bedrooms
3 Beds
Number of Bathrooms
3.0 Baths
Number of Floors Above Grade
2 Floors Above Grade
Home Type
Custom
Climate Zone Temperature
Mixed
Climate Zone Humidity
Humid

With PV

HERS Index with PV
-24HERS (PV)
Average Monthly Energy Bill PV
$20Average Monthly Energy Bill (PV)
Annual Energy Cost Savings with PV
$2,900Annual Energy Cost Savings (PV)
30 Year Savings with PV
$120,90030 Year Savings (PV)

EFFICIENT

HIA Year
HIA Status
Winner
HIA Category
Housing Innovation Award

Learn More

Key Features

Key Features
All-electric home Energy / Heat recovery ventilator Electric Vehicle Charger Installed or Wired for Charger Heat pump water heater Photovoltaics Structural insulated panel (SIP) walls or walls and roof Triple-pane windows Unvented insulated attic ACH 50 < 2.5 or CFM50/SF of enclosure ≤ 0.25 Hot Water Recirculation Pump

Additional Details

Additional Details
< 3000 ft²

See the Poster

Testimonials

Video Testimonial
Home owner (or occupant) Testimony
We really enjoy being in the house. It has a very special energy to it [that is] a combination of the technology and the landscape and all of the natural materials that are used in creating it.
Testimony Citation
Homeowner

Additional Media

Finished Elevations

Finished Interiors

Under Construction

Floor Plan