Skip to main content
Built By

Sareth Builders, LLC

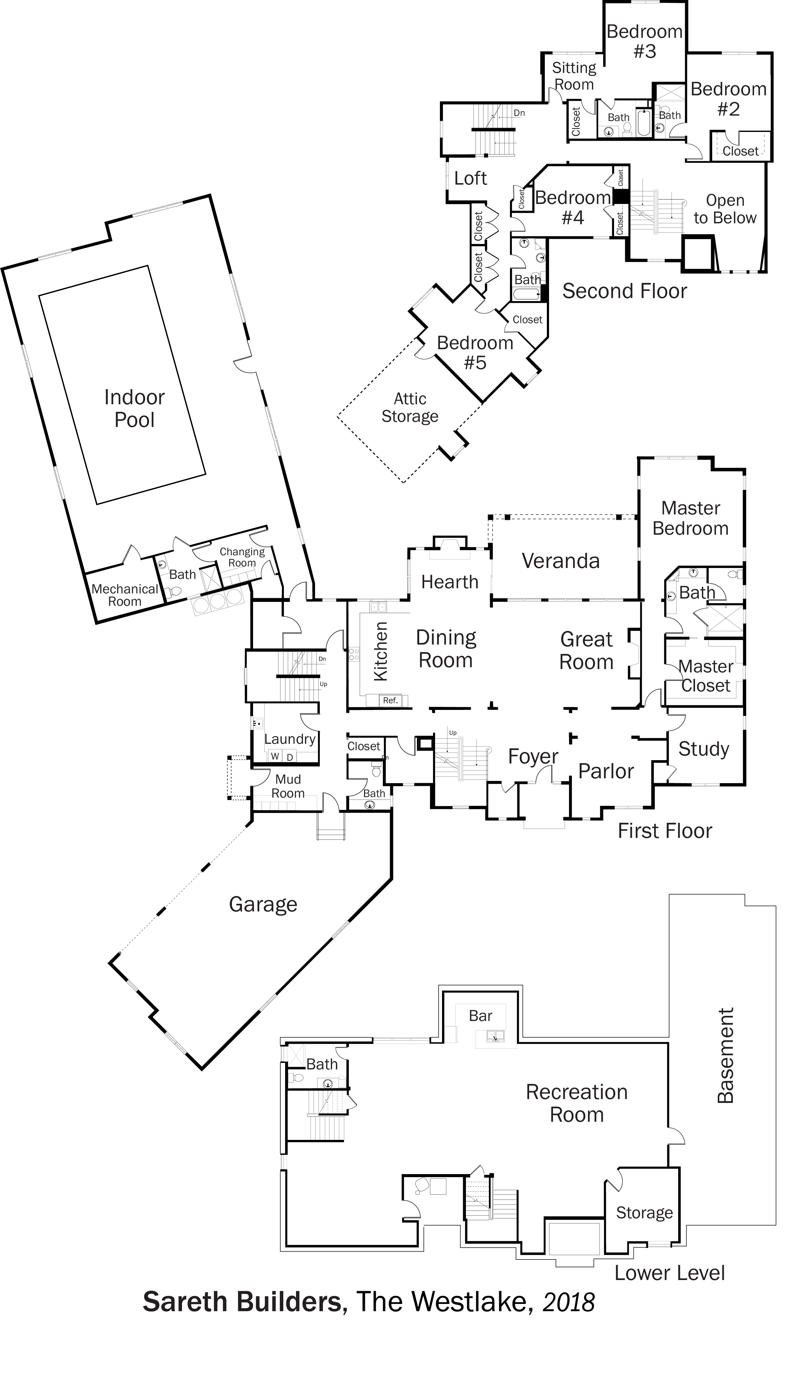
The Westlake

Project Address

Westlake, OH

Conditioned Square Footage
9,956 sqft
Number of Bedrooms
5 Beds
Number of Bathrooms
7.0 Baths
Number of Floors Above Grade
2 Floors Above Grade
Home Type
Custom
Climate Zone Temperature
Cold
Climate Zone Humidity
Humid

With PV

HERS Index with PV
37HERS (PV)
Average Monthly Energy Bill PV
$240Average Monthly Energy Bill (PV)
Annual Energy Cost Savings with PV
$2,200Annual Energy Cost Savings (PV)
30 Year Savings with PV
$107,70030 Year Savings (PV)

EFFICIENT

HIA Year
HIA Status
Honorable Mention

Learn More

Key Features

Key Features
Energy / Heat recovery ventilator Electric Vehicle Charger Installed or Wired for Charger High-performance wall with continuous insulation Raised-heel trusses Triple-pane windows ACH 50 < 2.5 or CFM50/SF of enclosure ≤ 0.25 Hot Water Recirculation Pump

Additional Details

Additional Details
Basement

Testimonials

Video Testimonial
Home owner (or occupant) Testimony
When we visit other people's homes and return to ours, we greatly appreciate the quality and feel we experience here. … I love waking up in my new house. Our new home is twice the size of our prior house and the natural gas bill is less than half.
Testimony Citation
Homeowners

Additional Media

Finished Interiors

Under Construction

Other Images

Floor Plan