Skip to main content
Built By

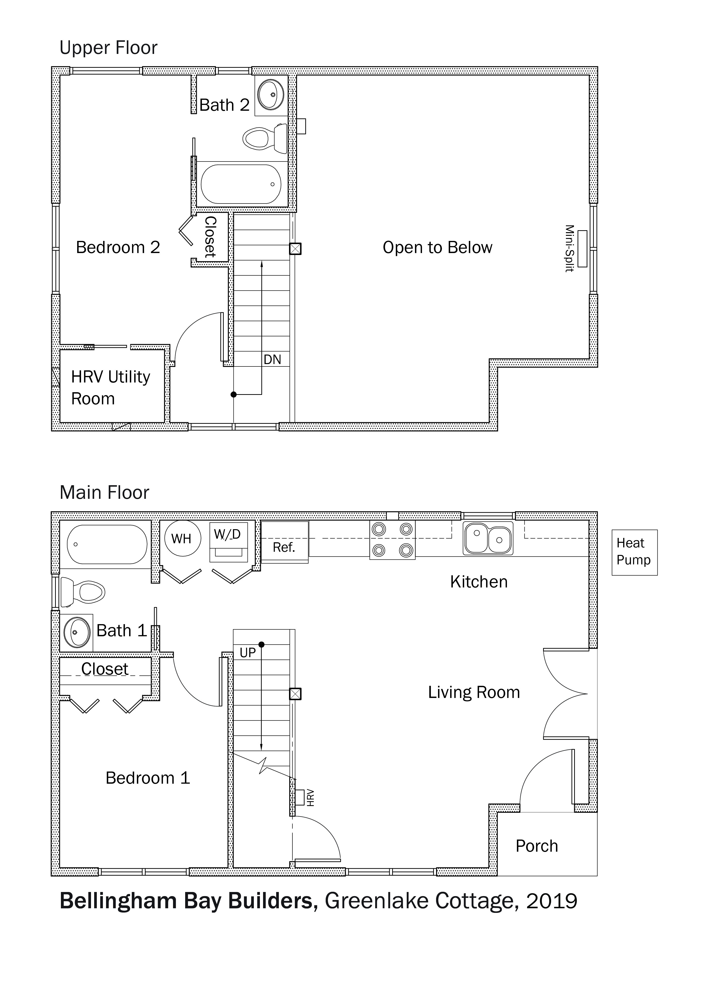
Bellingham Bay Builders

Greenlake Cottage

Project Address

Seattle, WA

Conditioned Square Footage
752 sqft
Number of Bedrooms
2 Beds
Number of Bathrooms
2.0 Baths
Number of Floors Above Grade
2 Floors Above Grade
Home Type
Custom
Climate Zone Temperature
Mixed
Climate Zone Humidity
Marine

With PV

HERS Index with PV
44HERS (PV)
Average Monthly Energy Bill PV
$50Average Monthly Energy Bill (PV)
Annual Energy Cost Savings with PV
$550Annual Energy Cost Savings (PV)
30 Year Savings with PV
$23,80030 Year Savings (PV)

EFFICIENT

HIA Year
HIA Status
Winner
HIA Category
Housing Innovation Award

Learn More

Key Features

Key Features
All-electric home Energy / Heat recovery ventilator Unvented insulated attic ACH 50 < 2.5 or CFM50/SF of enclosure ≤ 0.25

Read the Case Study

Testimonials

Video Testimonial

Watch Videos

Home owner (or occupant) Testimony
This house is so comfortable! The temperature is never hot or cold.
Testimony Citation
Homeowner

Additional Media

Finished Elevations

Finished Interiors

Under Construction

Floor Plan